I've written about Temple and Loop 363 but not yet Temple Mall, partly because I had never been there before, which was no longer the case of December 31st, 2025. Because Temple newspapers are not available online, I've had to make do with other sources. It opened in August 1976 with three major stores, Dillard's (69k square feet), Wilson's catalog showroom, Sears, and 60 smaller stores. Newspapers described a large fountain, parquet flooring, and trees, fairly typical for a mid-1970s mall at the time. There's not much to find about the mall afterward...JCPenney opened within a few years as part of a second phase...Scott & White opened a "Scott & White Options for Health Education Center" in 1986, indicating that the economic downturn had caused rates to plummet at the mall. It renovated in 1990, carving out a food court area near Sears, but in the early 1990s lost one of its anchors--and it's not the one you'd expect! With the Killeen Mall across town, Sears decided to close its Temple Mall store, with Foley's renovating and opening in its place in 1995. Foley's locating at Temple Mall rather than Waco's Richland Mall raised some eyebrows and questions about what would be the true epicenter of retail would be in the Waco-Temple-Killeen area, but it didn't mean much in the end. For a period of a few years in the late 1990s until around 2004-2005, it was called "Colonial Mall Temple" due to ownership by a Florida company which named their malls that, and the only Texas mall of that sort (mostly in the Southeast, like Macon Mall). After Service Merchandise closed (1999 or 2002), it was replaced by Steve & Barry's University Sportswear several years later (briefly) and eventually became Xtreme Jump Adventure Park in 2024. Foley's became Macy's in 2006 and closed in 2016 with Dillard's moving to its spot in 2017. JCPenney closed in 2021 and was replaced with Floor & Decor a few years later, and the former Dillard's (left vacant by the move) was retenanted with Planet Fitness and later Mega Furniture.
The mall, by this point, was dead. You know it's dead when the anchors don't open into the mall anymore and you can probably roll a bowling ball down the corridor and not hit anyone. The food court was mostly empty except for one pizza place, and there were still advertisements for Casa Olé in this section, which had moved outside the mall in 2024.
One of the things I noticed was that the mall had many ramps and staircases, with the mall dropping in elevation near the anchors. Despite the fact that the mall was a ghost town, I witnessed a young woman start slipping on the ramps (which were tile, not carpet or rubber—some sloped areas elsewhere are carpeted or rubber for that very reason, and I would imagine it wouldn't be terribly easy for an older or disabled person to navigate the mall.
The center area had the trampoline park open to the mall corridor near the arcade area, which was noisy. There was also Cotton Patch Cafe in the main corridor. This opened in 2004, and is still open, which meant that despite the mall's poor condition, it still had a full sit-down restaurant (not common in dead malls) and until 2024, had two!
The area near Mega Furniture was a little more alive, thanks to a coffee shop and FX Game Exchange. I'm not sure if this was the coffee shop's doing, but there was an alcove cut out with some tables and a tiny stage. I've never seen anything quite like it in a mall.
The FX Game Exchange was super-disappointing and a far cry from what the Waco one was even as of 2019 and the College Station one from before. There was some interesting stuff like used boxed PC games from the early 1990s, but a sizable selection of Funko Pops (buy two, get one free), some random toys, and a random selection of books, including a few children's titles. They had some old Nintendo Power magazines (none that I didn't already own, unfortunately) and a few strategy guides (not any that I didn't own...prices of used games have spiked upwards in demand since COVID outstripping inflation, and this has affected price and availability of printed strategy guides as well).
After passing by the movie theater (which permanently closed three years ago) I ended up backtracking after the end of the mall (Floor & Decor did not even mark their interior entrance). As I was trying to navigate the mall's ring road to get out (not helped by a car wash facility built right on the ring road's right of way), I noticed a "We're Open" banner on Floor & Decor's building. That's never a good sign, but when the store doesn't even have access to the mall and the access to the store is impeded by a car wash, what did you expect?
Knowing there was no mall directories in the mall (certainly no printed ones) I made a point to mark every operational store (the * means that it was not operating at the time of my visit, but still operating). The Candy & More store was more like a convenience store operation (no bulk), Peggy's was the coffee shop (sold smoothies, too, but nothing looked too appealing--the "inside" of the store had some coffee beans and gift items). "La Boutique" sold dresses for quinceañeras.
Ichi Hibachi Pro*
Niki's Roma Pizza
Pro Image Sports
VIP Nail & Spa
Xtreme Jump Adventure Park
Style Jewelry
Cotton Patch Cafe
Tao Spa*
Perfume Palace
Peekaboo World
Mega Furniture
Cosmo Nail & Spa
Candy & More
Cell Zone
Temple Henna Browz*
Under My Skin
En Fu*
Peggy's
FX Game Exchange
La Boutique*
Temple Mall Conference Center
Armed Forces Career Center
Cattlemens Western Wear
There was also a kiosk called "Sistar".
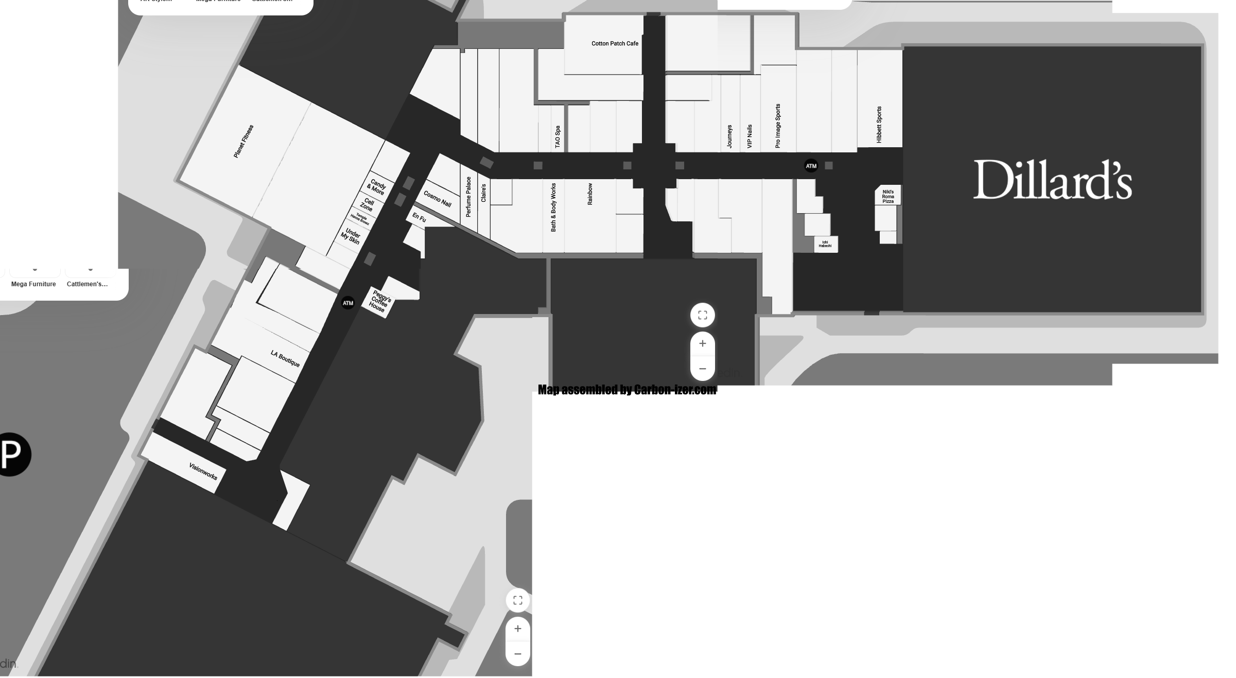
The missing ceiling seen above was actively undergoing repairs and surprisingly, the mall's website is still up and features a map, though it's out of date, showing Hibbett Sports, Rainbow, and Bath & Body Works (among others). Plus, because all of the mall maps use this annoying 3D format these days I had to manually put it together, which is annoying, and can't be pixel-perfect because the perspective keeps shifting. Cattlemens Western Wear is the one across from Visionworks (which has since fled across the street to the H-E-B/Kohl's center).
You can right click to open it in a new window without the shrinking. Even without the large swathes of vacant space, this was never a superregional center.

Here a few more photos...
- Former Great American Cookies there on the left
- This sign was on the vacant Claire's.
- This shows how Peggy's was integrated into the mall.
- The vacant movie theater. I didn't take another picture, but they also had the cinema's game room which opened into the mall's corridor.